1120 N Palmway, Lake Worth Beach, FL 33460

2

BEDROOMS

2

BATHROOMS

$2,900

RENT

975

SQUARE FEET

Pets: Yes

MLS#: RX-11134040

Subdivision: LAKE WORTH TOWN OF


For More Information Call:

561-283-4663

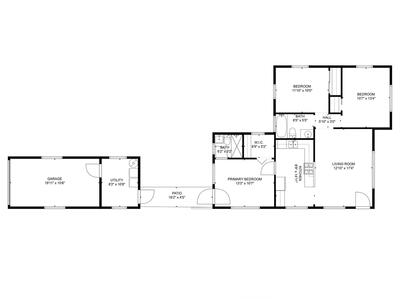
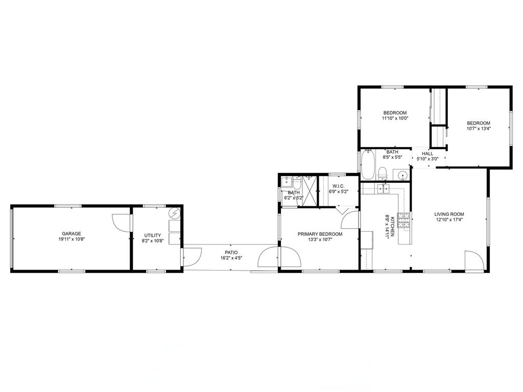
Northeast Lake Worth Beach. The home can be used as a three bedroom. The third bedroom is a convertible den / office with its own bathroom and entrance. There is a large detached garage with laundry. There is also room to park a boat at this house. The property has a complete set of impact glass, doors and windows, natural gas, stove, and water heater, and the yard is completely fenced.


Broker Reciprocity Logo

This listing is courtesy of The Corcoran Group. Real Estate and Luxury homes in Boca Raton, Delray Beach, Deerfield Beach, Juno Beach, 0 Lake Worth, Palm Beach Gardens, West Palm Beach and surrounding areas in Palm Beach County and South Florida. Property Listing Data contained within this site is the property of Brevard MLS and is provided for consumers looking to purchase real estate. Any other use is prohibited. We are not responsible for errors and omissions on this web site. All information contained herein should be deemed reliable but not guaranteed, all representations are approximate, and individual verification is recommended.

BeachesMLS Logo

All listings featuring the BMLS logo are provided by BeachesMLS Inc. This information is not verified for authenticity or accuracy and is not guaranteed. Copyright 2026 Beaches Multiple Listing Service, Inc.

  • CityLake Worth Beach
  • CoolingCentral
  • CountyPalm Beach
  • Damage Deposit$2,900
  • Date AvailableThursday, October 30th, 2025
  • Development NameLake Worth Beach
  • Directions10th Avenue North, east to North Palmway.
  • Equipment / Appliances IncludedAuto Garage Open, Dishwasher, Disposal, Dryer, Microwave, Range, Refrigerator, Smoke Detector, Washer and Water Heater - Gas
  • Exterior FeaturesFenced Yard
  • FlooringTile
  • For SaleYes
  • Full Bathrooms2
  • FurnishedUnfurnished
  • Garage Spaces1
  • Governing BodiesNone
  • HeatingCentral
  • High SchoolLake Worth High School
  • HOPANo Hopa
  • Interior FeaturesSplit Bedroom
  • Legal DescriptionTOWN OF LAKE WORTH LT 5 BLK 358
  • Listing DateTuesday, October 21st, 2025
  • Listing IDRX-11134040
  • Listing StatusActive
  • Lot Description< 1/4 Acre
  • Master Bedroom/BathCombo Tub/Shower and Mstr Bdrm - Ground
  • Middle SchoolLake Worth Community Middle
  • Minimum Days for Lease365
  • MiscellaneousGarage - 1 Car and Washer / Dryer
  • Move-in Requirements1st, last, security.
  • ParkingGarage - Detached and Street
  • Pets AllowedYes
  • PoolNo
  • Property TypeRental
  • Rental Info: 1st Month Deposit$2,900
  • Rental Info: Last Month Deposit$2,900
  • Rental Info: Unfurnished Annual Rent$2,900
  • Rental Price$2,900
  • Rental Price/SqFt$2.97 / sqft
  • RoomsUtil-Garage
  • SecurityNone
  • SqFt - Living975 sqft
  • SqFt - Total1,402 sqft
  • SqFt SourceTax Rolls
  • State/ProvinceFL
  • StatusActive
  • Status Change DateTuesday, October 21st, 2025
  • Street NamePalmway
  • Storm Protection: Impact GlassComplete
  • SubdivisionLake Worth Town Of
  • Subdivision AmenitiesStreet Lights
  • Tenant PaysCable, Electric, Gas, Sewer and Water
  • Total Bathrooms2
  • Total Bedrooms2
  • Total Floors/Stories1
  • Total Units in Complex1
  • TypeSingle Family Detached
  • Unit Floor Number1
  • Virtual TourYes
  • WaterfrontNo
  • Waterfront DetailsNone
  • Year Built1950
  • Zip Code33460

Share