1144 Crystal Drive, Palm Beach Gardens, FL 33418

4

BEDROOMS

4

BATHROOMS

$40,000

RENT

3,403

SQUARE FEET

Pets: No

MLS#: RX-11118039

Subdivision: CRYSTAL BAY


For More Information Call:

561-283-4663

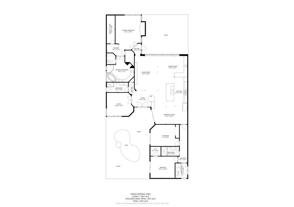
Available 1/5/25. Full golf membership and cart included with lease. This exquisitely renovated one story courtyard home spans 4,537 sqft and features 4 bedrooms and 4 bathrooms. Nestled within BallenIsles Country Club, it is now offered for seasonal lease fully furnished. Highlights include an airy open floorplan with high ceilings, a chef's kitchen, Casita guest house, a grill and pool bar, a heated spa-pool, and a 2-car garage. Pets permitted on a case by case basis. BallenIsles features 24 hour manned gates, a redesigned 115000 SF Clubhouse, 3 golf courses and a 65000 SF Sports Complex which includes a spa and salon, fitness center, world-class tennis facilities, resort-style swimming pool, and six dining areas noted for their variety of offerings, from casual to exceptional cuisine.


Broker Reciprocity Logo

This listing is courtesy of Compass Florida LLC. Real Estate and Luxury homes in Boca Raton, Delray Beach, Deerfield Beach, Juno Beach, 0 Lake Worth, Palm Beach Gardens, West Palm Beach and surrounding areas in Palm Beach County and South Florida. Property Listing Data contained within this site is the property of Brevard MLS and is provided for consumers looking to purchase real estate. Any other use is prohibited. We are not responsible for errors and omissions on this web site. All information contained herein should be deemed reliable but not guaranteed, all representations are approximate, and individual verification is recommended.

BeachesMLS Logo

All listings featuring the BMLS logo are provided by BeachesMLS Inc. This information is not verified for authenticity or accuracy and is not guaranteed. Copyright 2026 Beaches Multiple Listing Service, Inc.

  • Application Fee$750
  • CityPalm Beach Gardens
  • CoolingCeiling Fan and Central
  • CountyPalm Beach
  • Date AvailableWednesday, January 15th, 2025
  • DirectionsPGA or Northlake Blvds West to Ballenisles
  • Equipment / Appliances IncludedAuto Garage Open, Dishwasher, Disposal, Dryer, Freezer, Ice Maker, Microwave, Range, Refrigerator, Smoke Detector, Wall Oven and Washer
  • Exterior FeaturesFence, Fenced Yard and Zoned Sprinkler
  • FlooringTile and Wood Floor
  • For SaleNo
  • Full Bathrooms4
  • FurnishedFurnished and Turnkey
  • Garage Spaces2
  • Governing BodiesHOA
  • HeatingCentral
  • HOPANo Hopa
  • Interior FeaturesBuilt-in Shelves, Closet Cabinets, Foyer, Kitchen Island, Split Bedroom, Volume Ceiling and Walk-in Closet
  • Legal DescriptionCRYSTAL BAY LT 44
  • Listing DateSaturday, August 23rd, 2025
  • Listing IDRX-11118039
  • Listing StatusActive
  • Lot Description1/4 to 1/2 Acre
  • Master Bedroom/BathDual Sinks, Mstr Bdrm - Ground and Separate Tub
  • Minimum Days for Lease60
  • MiscellaneousCentral A/C, Community Pool, Garage - 2 Car, Golf, Private Pool, Recreation Facility, Security Deposit and Tennis
  • Parking2+ Spaces, Garage - Attached and Golf Cart
  • Pets AllowedNo
  • PoolYes
  • Property TypeRental
  • Rental Info: 1st Month Deposit$45,000
  • Rental Info: Last Month Deposit$45,000
  • Rental Price$40,000
  • Rental Price/SqFt$11.75 / sqft
  • RoomsFamily and Laundry-Inside
  • SecurityBurglar Alarm, Gate - Manned and Security Patrol
  • SqFt - Living3,403 sqft
  • SqFt - Total4,537 sqft
  • SqFt SourceTax Rolls
  • State/ProvinceFL
  • StatusActive
  • Status Change DateSaturday, August 23rd, 2025
  • Street NameCrystal
  • Storm Protection: Accordian ShuttersComplete
  • Storm Protection: Impact GlassComplete
  • SubdivisionCrystal Bay
  • Subdivision AmenitiesBike - Jog, Cafe/Restaurant, Clubhouse, Dog Park, Fitness Center, Golf Course, Pool and Tennis
  • Tenant PaysCable, Electric and Water
  • Total Bathrooms4
  • Total Bedrooms4
  • Total Floors/Stories1
  • TypeSingle Family Detached
  • Unit DescriptionOn Golf Course
  • Unit Floor Number1
  • ViewGolf and Lake
  • Virtual TourYes
  • WaterfrontNo
  • Waterfront DetailsLake
  • Year Built1995
  • Zip Code33418

Share