400 Executive Center Drive, West Palm Beach, FL 33401

1985

YEAR BUILT

$5,767

LISTING PRICE

Office

TYPE

MLS#: RX-11063818

Type of Building: Commercial Condo and Condo


For More Information Call:

561-283-4663

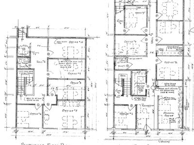
This property is located in Central West Palm Beach. The second floor includes a private entrance in the rear of the building. The tenant can utilize the main entrance and receptionist on the first floor. The space includes two private offices, a kitchen/breakroom (no plumbing, just cabinets and refrigerator), which can also be utilized as a third office or small conference room, plus a bathroom with a shower. An IT closet and conference room are located on the first floor, both of which are shared with the property owner. Use of the receptionist and conference room are included in the base rent. There is one covered parking space available for the second floor tenant. All CAM charges are shared with the new Tenant.


Broker Reciprocity Logo

This listing is courtesy of Compass Florida LLC. Real Estate and Luxury homes in Boca Raton, Delray Beach, Deerfield Beach, Juno Beach, 0 Lake Worth, Palm Beach Gardens, West Palm Beach and surrounding areas in Palm Beach County and South Florida. Property Listing Data contained within this site is the property of Brevard MLS and is provided for consumers looking to purchase real estate. Any other use is prohibited. We are not responsible for errors and omissions on this web site. All information contained herein should be deemed reliable but not guaranteed, all representations are approximate, and individual verification is recommended.

BeachesMLS Logo

All listings featuring the BMLS logo are provided by BeachesMLS Inc. This information is not verified for authenticity or accuracy and is not guaranteed. Copyright 2026 Beaches Multiple Listing Service, Inc.

  • Available DocumentsNone
  • Available InformationNone
  • Building Info: Number of Offices9
  • CityWest Palm Beach
  • ConstructionCBS and Concrete
  • CoolingCentral, Central Individual and Electric
  • CountyPalm Beach
  • DirectionsFrom I-95 and Palm Beach Lakes Blvd, go East to Congress, South on Congress to Executive Center Drive. Left (East) on Executive
  • Fire ProtectionSprinkler
  • FlooringCeramic Tile and Tile
  • For LeaseYes
  • For SaleNo
  • HeatingCentral, Central Individual and Electric
  • Lease4-6 Years, Long Term, Net Rent and Option Available
  • Lease Price SqFt$25 / sqft
  • Lease Year3
  • Legal DescriptionEXECUTIVE CENTER PLAZA COND UNIT 209
  • List Price$5,766.66
  • List Price/SqFt$2.08 / sqft
  • Listing DateWednesday, February 19th, 2025
  • Listing IDRX-11063818
  • Listing Price$5,767
  • Listing StatusActive
  • LocationCentral Business Dst and Commerce Park
  • Minimum Lease Months36
  • Number of Stories2
  • Number of Toilets2
  • Percent Air Conditioned100%
  • PossessionOther and Subject to Lease
  • Property Description2 story office condo
  • Property TypeCommercial
  • Real Estate Taxes$6,804.25
  • RoofOther
  • Sale IncludesNone
  • SqFt SourceFloor Plan
  • State/ProvinceFL
  • StatusActive
  • Status Change DateWednesday, February 19th, 2025
  • Street NameExecutive Center
  • SubdivisionExecutive Center Plaza Condo
  • Tax Year2024
  • Tenant PaysElectric, Insurance, Repairs and Water
  • Terms ConsideredOther
  • Total Building SqFt2,768 sqft
  • Total Units in Building1
  • TypeOffice
  • Type of BuildingCommercial Condo and Condo
  • Unit Number209
  • UtilitiesCable, Electric and Public Water
  • Virtual TourYes
  • WaterfrontYes
  • Year Built1985
  • Zip Code33401
  • ZoningNC(cit

Share