11700 SE Shell Avenue, Hobe Sound, FL 33455

2024

YEAR BUILT

$4,750,000

LISTING PRICE

Office

TYPE

MLS#: RX-11038408

Type of Building: Commercial, Free Standing, Office Space and Office/Professional


For More Information Call:

561-283-4663

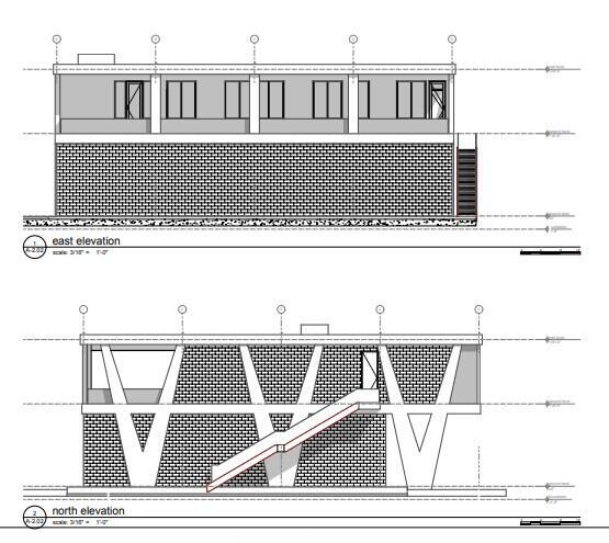
Experience the epitome of modern sophistication in this brand-new Class ''A'' office building. Boasting 11,200+/- SF of versatile space, this property offers multiple private offices, collaborative workspaces, an elegant waiting area, and a state-of-the-art conference room. With expansive windows flooding the second floor with natural light, this building is designed to inspire productivity and comfort. Equipped with a kitchen, private covered parking, and a 1,600+/- SF covered patio, the property accommodates convenience and luxury. Built to withstand a Category 5 hurricane and featuring a comprehensive fire sprinkler system, this property ensures safety and security. The inclusion of a car lift for second-floor access and generous ceiling heights on both levels makes it an ideal space for an


Broker Reciprocity Logo

This listing is courtesy of SVN Florida PB LLC. Real Estate and Luxury homes in Boca Raton, Delray Beach, Deerfield Beach, Juno Beach, 0 Lake Worth, Palm Beach Gardens, West Palm Beach and surrounding areas in Palm Beach County and South Florida. Property Listing Data contained within this site is the property of Brevard MLS and is provided for consumers looking to purchase real estate. Any other use is prohibited. We are not responsible for errors and omissions on this web site. All information contained herein should be deemed reliable but not guaranteed, all representations are approximate, and individual verification is recommended.

BeachesMLS Logo

All listings featuring the BMLS logo are provided by BeachesMLS Inc. This information is not verified for authenticity or accuracy and is not guaranteed. Copyright 2026 Beaches Multiple Listing Service, Inc.

  • Acres2.90 acres
  • Available DocumentsAerial
  • Available InformationDrawings and Photos
  • Built DescriptionNew Construction
  • CityHobe Sound
  • CoolingCentral
  • CountyMartin
  • DirectionsThis property is located south of Bridge Road and east of A1A/SE Dixie Hwy.
  • Fire ProtectionSprinkler
  • FlooringConcrete
  • For LeaseNo
  • For SaleYes
  • HeatingCentral
  • LeaseNone
  • Legal DescriptionAuto Art Gallery Office
  • List Price$4,750,000
  • List Price/SqFt$424.11 / sqft
  • Listing DateTuesday, November 19th, 2024
  • Listing IDRX-11038408
  • Listing Price$4,750,000
  • Listing StatusActive
  • Number of Stories2
  • Number of Toilets2
  • Percent Air Conditioned100%
  • PossessionAt Closing
  • Property DescriptionAUTO ART GALLERY
  • Property TypeCommercial
  • RoofOther
  • Sale IncludesBuilding and Land
  • SqFt SourceDeveloper
  • State/ProvinceFL
  • StatusActive
  • Status Change DateTuesday, November 19th, 2024
  • Street NameShell
  • Tax Year2024
  • Tenant PaysNone
  • Terms ConsideredCash and Conventional
  • Total Building SqFt11,200 sqft
  • Total Units in Building1
  • TypeOffice
  • Type of BuildingCommercial, Free Standing, Office Space and Office/Professional
  • UtilitiesElectric
  • Virtual TourYes
  • WaterfrontNo
  • Year Built2024
  • Zip Code33455
  • ZoningHobe Sound Red

Share