1801 S 23rd Street, Fort Pierce, FL 34950

1988

YEAR BUILT

$500,000

LISTING PRICE

Special Use

TYPE

MLS#: RX-11125220

Type of Building: Condo, Medical, Office/Professional and Special Purpose


For More Information Call:

561-283-4663

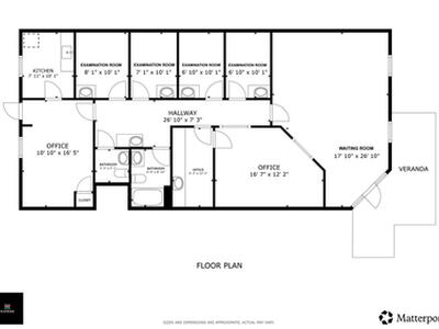
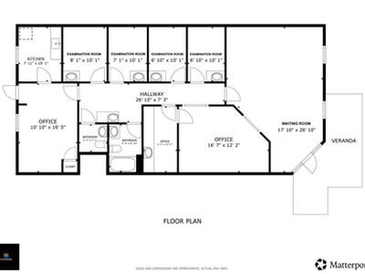
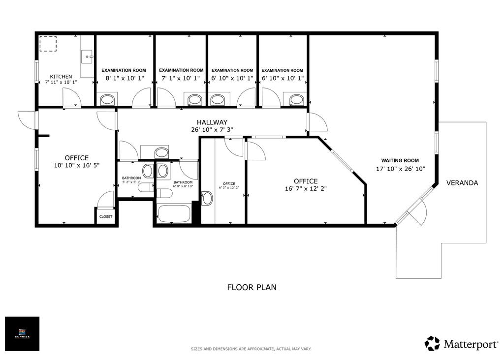
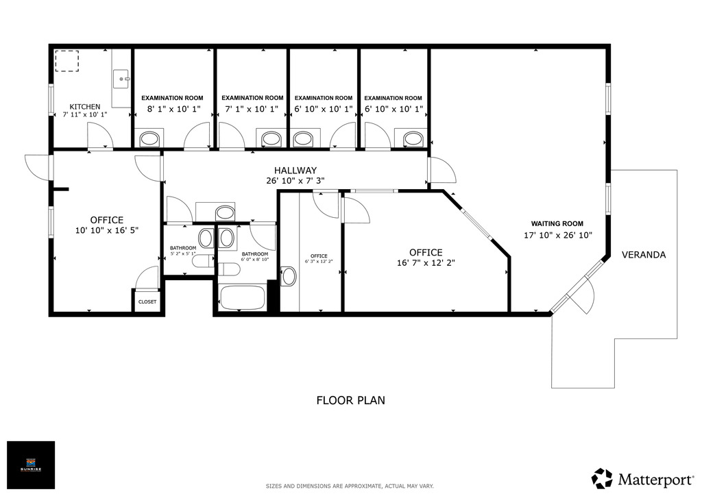
Pediatric Office for Sale - Across from HCA Florida Lawnwood HospitalPrime opportunity to own a 1,734 sq. ft. medical office in Fort Pierce's Treasure Coast healthcare corridor. Located directly across from HCA Florida Lawnwood Hospital--home to a Heart Institute, Level II Trauma Center, Stroke Center, Level III NICU, pediatric ER, and 24/7 emergency care--this office offers unmatched convenience and referral potential.Features:4 exam roomsLarge waiting & receptionist area2-3 private offices (flexible layout)Lab/procedure prep areaKitchen/break area & 2 bathroomsAmple on-site parkingClose to Indian River State College, offering Healthcare Management degrees--ideal for access to a skilled workforce and educational partnerships. A turnkey opportunity for ped


Broker Reciprocity Logo

This listing is courtesy of One Sotheby's Int'l Realty. Real Estate and Luxury homes in Boca Raton, Delray Beach, Deerfield Beach, Juno Beach, 0 Lake Worth, Palm Beach Gardens, West Palm Beach and surrounding areas in Palm Beach County and South Florida. Property Listing Data contained within this site is the property of Brevard MLS and is provided for consumers looking to purchase real estate. Any other use is prohibited. We are not responsible for errors and omissions on this web site. All information contained herein should be deemed reliable but not guaranteed, all representations are approximate, and individual verification is recommended.

BeachesMLS Logo

All listings featuring the BMLS logo are provided by BeachesMLS Inc. This information is not verified for authenticity or accuracy and is not guaranteed. Copyright 2026 Beaches Multiple Listing Service, Inc.

  • Annual Assoc/Condo Dues$7,820.40
  • Available DocumentsNone
  • Available InformationBy-Laws & Docs and Photos
  • Building Info: Interior Ceiling Height10ft
  • Building Info: Number of Offices1
  • Built DescriptionResale
  • CityFort Pierce
  • ConstructionConcrete
  • CoolingCentral and Electric
  • CountySt. Lucie
  • DirectionsOkeechobee Rd to S 25TH north to Rhode Island Ave right to property
  • Fire ProtectionSmoke Alarm and Smoke Detector
  • FlooringLaminate
  • For LeaseNo
  • For SaleYes
  • HeatingCentral and Electric
  • LeaseAnnual
  • Legal DescriptionFORT PIERCE MEDICAL CENTER CONDOMINIUM UNIT 3
  • List Price$500,000
  • Listing DateThursday, September 18th, 2025
  • Listing IDRX-11125220
  • Listing Price$500,000
  • Listing StatusActive
  • LocationCity
  • Maintenance Fee IncludedLawn Care and Trash Removal
  • Miscellaneous 1Handicapped
  • Miscellaneous 2Office, Reception Area, Separate Office Area and Traffic Medium
  • Monetary Info: Total Expenses$7,820.40
  • Number of Stories1
  • Number of Toilets2
  • Percent Air Conditioned100%
  • PossessionAt Closing and Funding
  • Property DescriptionMEDICAL OFFICE
  • Property TypeCommercial
  • Real Estate Taxes$3,966
  • RoofOther
  • Sale IncludesFurniture
  • Special InformationUse Conforms to Zone
  • SqFt SourceTax Rolls
  • State/ProvinceFL
  • StatusActive
  • Status Change DateThursday, September 18th, 2025
  • Street Name23rd
  • Tax Year2024
  • Tenant PaysNone
  • Terms ConsideredCash, Conventional and Other
  • Total Units in Building1
  • TypeSpecial Use
  • Type of BuildingCondo, Medical, Office/Professional and Special Purpose
  • Unit Number3
  • UtilitiesCable, Electric, Public Sewer and Public Water
  • Virtual TourYes
  • WaterfrontNo
  • Year Built1988
  • Zip Code34950
  • Zoning1904 - MED COND

Share