212 S Olive Avenue, West Palm Beach, FL 33401

Status: Active

2024

YEAR EST.

$215,000

LISTING PRICE

Restaurant

BUSINESS TYPE

MLS#: RX-11118526

Business Name: La Maison de Paris


For More Information Call:

561-283-4663

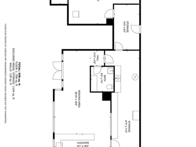
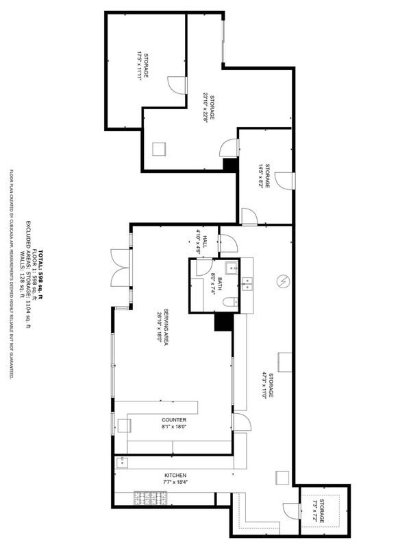
Restaurant Business for Sale ~ Downtown WPBLocation: Prime spot in The StrandSize: ~2,200 SF (1,100 SF operational + 1,100 SF storage/underutilized)Fully equipped w/ Type 1 hood, grease trap & grill. Seating 22 indoor, 26 outdoor (sidewalk permit), potential expansion to 75.License: Beer & wine included.Lease: 9 yrs remaining + 5-yr option.Rent: $9,700/mo + NNN; tenant covers property tax, HOA & insurance.ROFR.Traffic: Excellent visibility, heavy pedestrian flow in vibrant corridor.Asking Price: $215,000Note: Sale based on leasehold interest, equipment & location, not P&L.


Broker Reciprocity Logo

This listing is courtesy of Anderson Urban Real Estate. Real Estate and Luxury homes in Boca Raton, Delray Beach, Deerfield Beach, Juno Beach, 0 Lake Worth, Palm Beach Gardens, West Palm Beach and surrounding areas in Palm Beach County and South Florida. Property Listing Data contained within this site is the property of Brevard MLS and is provided for consumers looking to purchase real estate. Any other use is prohibited. We are not responsible for errors and omissions on this web site. All information contained herein should be deemed reliable but not guaranteed, all representations are approximate, and individual verification is recommended.

BeachesMLS Logo

All listings featuring the BMLS logo are provided by BeachesMLS Inc. This information is not verified for authenticity or accuracy and is not guaranteed. Copyright 2026 Beaches Multiple Listing Service, Inc.

  • Annual Base Rent$128,400
  • Available DocumentsOccupational License
  • Available InformationBy-Laws & Docs, Copies of Lease, Equipment Inventory and Inventory
  • Building Info: Miles to Beach1 miles
  • Building Info: Miles to Expressway3 miles
  • Building Info: Number of Employees5
  • Building Info: Seating Capacity48
  • Business NameLa Maison de Paris
  • Business TypeRestaurant
  • CityWest Palm Beach
  • CoolingCentral Building
  • CountyPalm Beach
  • DirectionsFrom I95, take Okeechobee Blvd.to Olive Ave. turn (left) & go 7 blocks (North). Unit is located on the (East) side of the street between Evernia & Datura.
  • Expenses IncludedLicense & Permit, Property Management and Trash Removal
  • Fire ProtectionSmoke Alarm, Smoke Detector and Sprinkler
  • FlooringTile
  • Lease ExpiresMonday, July 31st, 2034
  • Lease Term Remarks7 -10 Years and Options Available
  • Legal DescriptionN/A
  • LicenseBeer & Wine
  • List Price$215,000
  • List Price/SqFt$94.96 / sqft
  • Listing DateMonday, August 25th, 2025
  • Listing IDRX-11118526
  • Listing Price$215,000
  • Listing StatusActive
  • LocationAirport Access, Beach Area, Central Business Dst and City
  • Multiple Offers AcceptedYes
  • Number of Stories1
  • Number of Toilets1
  • OwnershipLimited Partner
  • ParkingCovered and Street
  • Property TypeBusiness
  • RoadsCity / County Maint and Paved
  • Sale IncludesBusiness Only, Equipment, Fixtures, Furniture and License
  • Short SaleNo
  • Short Sale A/UN/A
  • Short Sale AddendumNo
  • Special InformationSold As-Is
  • SqFt Included2,264 sqft
  • SqFt SourceFloor Plan
  • State/ProvinceFL
  • StatusActive
  • Status Change DateMonday, August 25th, 2025
  • Street NameOlive
  • Terms ConsideredCash, Conventional, Cryptocurrency and Exchange
  • TypeBusiness
  • Type of BuildingCommercial, Commercial Condo, Lounge, Office / Retail, Professional, Restaurant, Retail and Tavern Bar
  • UtilitiesGas Natural, Other, Public Sewer and Public Water
  • Virtual TourYes
  • WaterfrontNo
  • Year Built2002
  • Year Established2024
  • Zip Code33401
  • ZoningFWD-5

Share