3589 S Ocean 512 Boulevard, South Palm Beach, FL 33480

2

BEDROOMS

2

BATHROOMS

$4,000

RENT

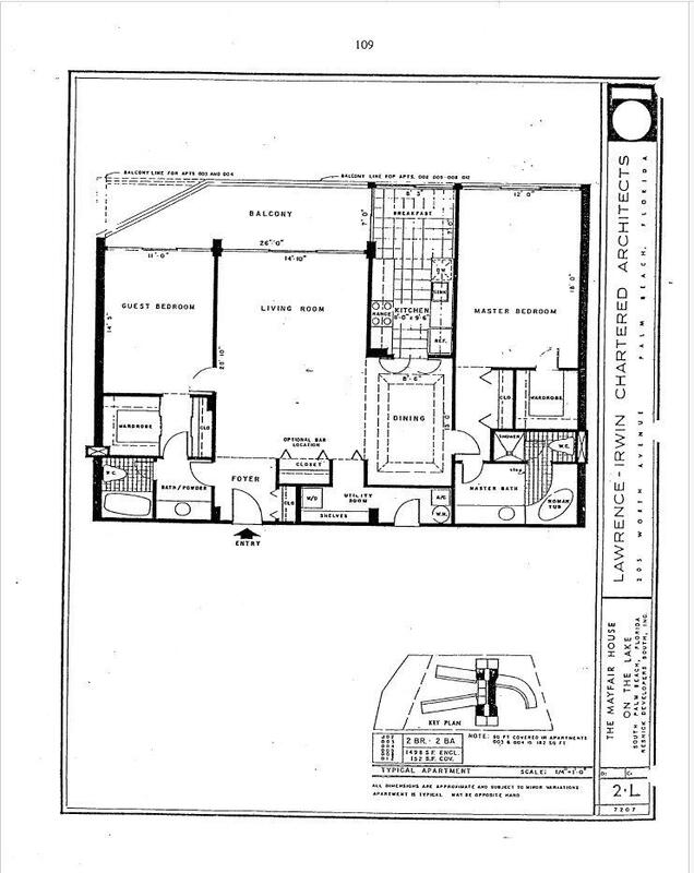
1,498

SQUARE FEET

Pets: No

MLS#: RX-11116796

Subdivision: MAYFAIR HOUSE CONDO


For More Information Call:

561-283-4663

Updated 2/2 on barrier island! Tranquil Intracoastal and Sunset Views! Split bedroom floor plan. Renovated kitchen with granite counters, plus designer baths! Inviting living area with generous space for entertaining and relaxing with family and friends. The heart of the space is balcony, which connects a bedroom, kitchen and primary living area. It is deep and long, so the space is wonderful for all occasions. The condo has impact windows and shutters, so it is ready for storms. The property has a pool on the ICW plus an ocean club on the sand, with additional pool and outdoor BBQ and indoor kitchen. Beach access is provided. The community has a gym, sauna, doorperson and loads of guest parking. New AC 2023/H2O Heater 2022. Community finished new roofs and concrete restoration.


Broker Reciprocity Logo

This listing is courtesy of John P. O'Grady LLC. Real Estate and Luxury homes in Boca Raton, Delray Beach, Deerfield Beach, Juno Beach, 0 Lake Worth, Palm Beach Gardens, West Palm Beach and surrounding areas in Palm Beach County and South Florida. Property Listing Data contained within this site is the property of Brevard MLS and is provided for consumers looking to purchase real estate. Any other use is prohibited. We are not responsible for errors and omissions on this web site. All information contained herein should be deemed reliable but not guaranteed, all representations are approximate, and individual verification is recommended.

BeachesMLS Logo

All listings featuring the BMLS logo are provided by BeachesMLS Inc. This information is not verified for authenticity or accuracy and is not guaranteed. Copyright 2026 Beaches Multiple Listing Service, Inc.

  • Application Fee$200
  • Building Number3589
  • CitySouth Palm Beach
  • CoolingCeiling Fan and Electric
  • CountyPalm Beach
  • Damage Deposit$1
  • Date AvailableMonday, August 18th, 2025
  • Development NameTHE MAYFAIR HOUSE
  • Equipment / Appliances IncludedDishwasher, Disposal, Dryer, Microwave, Refrigerator, Washer and Water Heater - Elec
  • Exterior FeaturesCovered Balcony and Shutters
  • FlooringTile
  • For SaleNo
  • Full Bathrooms2
  • FurnishedFurnished and Unfurnished
  • Governing BodiesCondo
  • HeatingCentral and Electric
  • HOPANo Hopa
  • Interior FeaturesBuilt-in Shelves, Closet Cabinets, Foyer, Split Bedroom and Walk-in Closet
  • Legal DescriptionMAYFAIR HOUSE COND PAR 512 BLDG LAKE
  • Listing DateMonday, August 18th, 2025
  • Listing IDRX-11116796
  • Listing StatusActive
  • Lot DescriptionEast of US-1, Paved Road and Sidewalks
  • Master Bedroom/BathDual Sinks, Mstr Bdrm - Ground and Separate Shower
  • Minimum Days for Lease120
  • MiscellaneousAssigned Parking, Porch / Balcony and Washer / Dryer
  • Move-in Requirementsfirst, last and security
  • ParkingAssigned, Guest and Vehicle Restrictions
  • Pets AllowedNo
  • PoolNo
  • Property TypeRental
  • Rental Info: 1st Month Deposit$4,000
  • Rental Info: Furnished Annual Rent$4,000
  • Rental Info: Furnished Seasonal Rent$5,000
  • Rental Info: Last Month Deposit$4,000
  • Rental Info: Unfurnished Annual Rent$4,000
  • Rental Info: Unfurnished Seasonal Rent$5,000
  • Rental Price$4,000
  • Rental Price/SqFt$2.67 / sqft
  • RoomsLaundry-Inside, Laundry-Util/Closet and Storage
  • SecurityDoorman, Lobby and TV Camera
  • SqFt - Living1,498 sqft
  • SqFt - Total1,498 sqft
  • SqFt SourceTax Rolls
  • State/ProvinceFL
  • StatusActive
  • Status Change DateMonday, August 18th, 2025
  • Street NameOcean 512
  • Storm Protection: Electric/Power ShuttersComplete
  • Storm Protection: Impact GlassComplete
  • SubdivisionMayfair House Condo
  • Subdivision AmenitiesBeach Club Available, Bike - Jog, Bike Storage, Clubhouse, Community Room, Elevator, Extra Storage, Fitness Center, Game Room, Library, Lobby, Manager on Site, Pool, Sauna, Sidewalks, Street Lights and Trash Chute
  • Tenant PaysCable and Electric
  • Total Bathrooms2
  • Total Bedrooms2
  • Total Floors/Stories9
  • Total Units in Building133
  • Total Units in Complex223
  • TypeCondo/Coop
  • Unit DescriptionInterior Hallway
  • Unit Floor Number5
  • Unit Number512
  • ViewGarden, Intracoastal and Pool
  • Virtual TourYes
  • WaterfrontYes
  • Waterfront DetailsIntracoastal
  • Year Built1974
  • Zip Code33480

Share