2328 S Congress Avenue, Palm Springs, FL 33406

1980

YEAR BUILT

$3,755

LISTING PRICE

Office

TYPE

MLS#: RX-11133280

Type of Building: Office Space and Office/Professional


For More Information Call:

561-283-4663

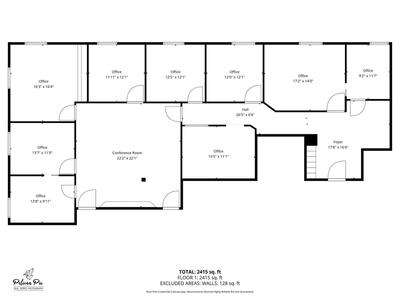
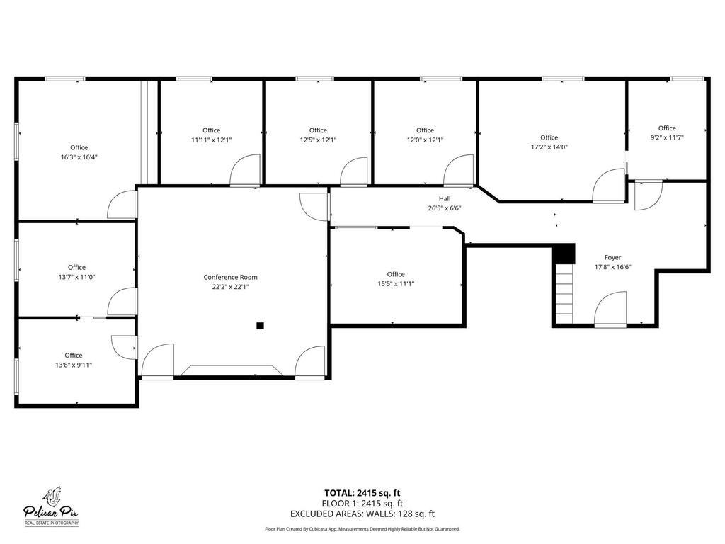
Excellent Opportunity - Flexible Office Space for Lease. Prime office space available | free standing two-story professional building located at 2328 S Congress Ave, in the high-traffic corridor of Palm Springs / West Palm Beach. On the second floor, there are two SUITES, B & C, each with private office spaces separated by walls and doors. SUITE B: 5 offices, foyer & hallway -Total 1287.35 SF. $3755 monthly equates to: 1287 sq.ft. X $ 35.00. All measurements are approximate and should be verified by the client and his agent. SUITE C: 4 offices & conference room - Total 1168.79 SF. $3410. Monthly equates to : 1168.79 SF X $35.00. All measurements are approximate and should be verified by the client and his agent.


Broker Reciprocity Logo

This listing is courtesy of LPT Realty, LLC. Real Estate and Luxury homes in Boca Raton, Delray Beach, Deerfield Beach, Juno Beach, 0 Lake Worth, Palm Beach Gardens, West Palm Beach and surrounding areas in Palm Beach County and South Florida. Property Listing Data contained within this site is the property of Brevard MLS and is provided for consumers looking to purchase real estate. Any other use is prohibited. We are not responsible for errors and omissions on this web site. All information contained herein should be deemed reliable but not guaranteed, all representations are approximate, and individual verification is recommended.

BeachesMLS Logo

All listings featuring the BMLS logo are provided by BeachesMLS Inc. This information is not verified for authenticity or accuracy and is not guaranteed. Copyright 2026 Beaches Multiple Listing Service, Inc.

  • Acres43,560 acres
  • Available DocumentsAerial
  • Available InformationPhotos
  • Building Info: Miles to Expressway2 miles
  • Built DescriptionResale
  • CityPalm Springs
  • ConstructionBlock and Brick
  • CoolingCentral and Electric
  • CountyPalm Beach
  • DirectionsForest Hill Blvd. To Congress Ave. make a right and enter the plaza, intersection of Dolan & Congress Ave.
  • Fire ProtectionSmoke Alarm and Sprinkler
  • FlooringCarpet and Tile
  • For LeaseYes
  • For SaleNo
  • HeatingOther
  • Lease1-3 Years, Annual, Gross Rent, Long Term and Triple Net
  • Legal DescriptionCONGRESS PARK COND OFFICE BLDGUNIT 2-B BLDG 2328
  • List Price$3,755
  • Listing DateFriday, October 17th, 2025
  • Listing IDRX-11133280
  • Listing Price$3,755
  • Listing StatusActive
  • LocationCity
  • Miscellaneous 1Elevator, Janitorial Service and Landscaped
  • Miscellaneous 2Traffic Heavy
  • Multiple Offers AcceptedYes
  • Number of Stories2
  • Number of Toilets2
  • Percent Air Conditioned100%
  • PossessionAt Closing and Other
  • Property DescriptionOffice Lease
  • Property TypeCommercial
  • Real Estate Taxes$364.45
  • RoofComp Shingle
  • Sale IncludesNone
  • Special InformationNone
  • SqFt SourceTax Rolls
  • State/ProvinceFL
  • StatusActive
  • Status Change DateFriday, October 17th, 2025
  • Street NameCongress
  • SubdivisionCongress Park Office Condo
  • Tax Year2024
  • Tenant PaysElectric, Insurance, Repairs and Taxes
  • Terms ConsideredLease Option
  • Total Units in Building9
  • TypeOffice
  • Type of BuildingOffice Space and Office/Professional
  • Unit 1: Number of Units9
  • Unit Number2 B
  • UtilitiesPublic Sewer
  • Virtual TourYes
  • WaterfrontYes
  • Year Built1980
  • Zip Code33406
  • ZoningCG(cit

Share