5300 NW 12th Avenue, Fort Lauderdale, FL 33309

1985

YEAR BUILT

$1,200,000

LISTING PRICE

Industrial

TYPE

MLS#: RX-11029866

Type of Building: Commercial Condo and Warehouse


For More Information Call:

561-283-4663

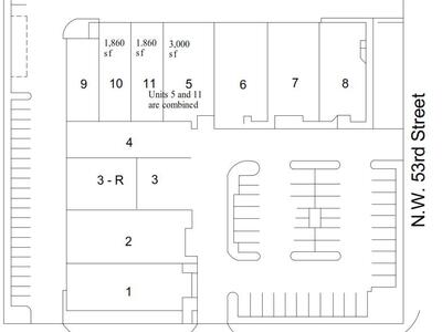
AUTO USE ALLOWED in Fort Lauderdale!Combined 4,860 SF warehouse condominium units in a prime location near DRV PNK Stadium and Fort Lauderdale Executive Airport. The property offers quick access to I-95 and Florida's Turnpike, making it perfect for businesses needing central connectivity. Features include 20-foot ceilings, 10% office space, 5 roll-up 10x10 doors, 2 bathrooms, and ample parking in both the front and rear. An additional 1,860 SF contiguous unit 10 is also available for a total of 6,720 SF of contiguous warehouse space. It is ideal for warehousing, light manufacturing, or service businesses. Don't miss this opportunity! Ideal for warehousing, light manufacturing, or service businesses. Don't miss this opportunity!


Broker Reciprocity Logo

This listing is courtesy of Comwire Realty Inc. Real Estate and Luxury homes in Boca Raton, Delray Beach, Deerfield Beach, Juno Beach, 0 Lake Worth, Palm Beach Gardens, West Palm Beach and surrounding areas in Palm Beach County and South Florida. Property Listing Data contained within this site is the property of Brevard MLS and is provided for consumers looking to purchase real estate. Any other use is prohibited. We are not responsible for errors and omissions on this web site. All information contained herein should be deemed reliable but not guaranteed, all representations are approximate, and individual verification is recommended.

BeachesMLS Logo

All listings featuring the BMLS logo are provided by BeachesMLS Inc. This information is not verified for authenticity or accuracy and is not guaranteed. Copyright 2026 Beaches Multiple Listing Service, Inc.

  • Acres0.12 acres
  • Available DocumentsNone
  • Available InformationBy-Laws & Docs, Copies of Lease and None
  • CityFort Lauderdale
  • CoolingCentral Individual
  • CountyBroward
  • DirectionsWest of I-95 on Commercial Blvd, to NW 12th Ave, and then North 53rd Street.
  • Fire ProtectionNone
  • FlooringConcrete
  • For LeaseNo
  • For SaleYes
  • HeatingCentral Individual
  • LeaseAnnual and None
  • Legal DescriptionYANKEE EXECUTIVE WAREHOUSE CONDO UNITS 11 & 5 PER CDO BK/PG: 13207/222
  • List Price$1,200,000
  • List Price/SqFt$246.91 / sqft
  • Listing DateSaturday, October 19th, 2024
  • Listing IDRX-11029866
  • Listing Price$1,200,000
  • Listing StatusActive
  • Miscellaneous 2Overhead Doors
  • Number of Stories1
  • Number of Toilets2
  • Percent Air Conditioned10%
  • Property DescriptionWarehouse Condominiu
  • Property TypeCommercial
  • Real Estate Taxes$13,454
  • RoofBuilt-Up
  • Sale IncludesNone
  • SqFt SourceOther
  • State/ProvinceFL
  • StatusActive
  • Status Change DateSaturday, October 19th, 2024
  • Street Name12th
  • SubdivisionYankee Executive Warehouse Condo Unit 11 And Unit 5
  • Tax Year2023
  • Tenant PaysCommon Area Maint., Electric, Sewer and Water
  • Terms ConsideredCash and Conventional
  • Total Building SqFt4,860 sqft
  • Total Units in Building1
  • TypeIndustrial
  • Type of BuildingCommercial Condo and Warehouse
  • Unit Number5-11
  • UtilitiesElectric, Public Sewer and Public Water
  • Virtual TourYes
  • WaterfrontNo
  • Year Built1985
  • Zip Code33309
  • ZoningI

Share